华体会·官方版网站登录入口建立智能滴灌水肥一体化技术试点
发布时间:2022-03-01 字体大小:小 中 大
2月21日,华体会·官方版网站登录入口在径山中试基地完成智能滴灌水肥一体化项目(一期)验收。该项目通过建立一套科学控水、精准施肥、实时监测、远程控制的现代容器苗生产管理体系,加速推动苗木行业向科技化、设施化、品质化转型。
项目的启动缘起于2021年在杭州召开的首届绣球产业创新发展学术研讨会。会上,中国林业科学研究院兰再平研究员分享的一项智能滴灌水肥一体化技术为绣球花高品质生产提供了新思路。
项目简介
试点地址:华体会·官方版网站登录入口径山中试基地
试点面积:70亩(包括8亩的连栋温室和62亩的容器育苗区)
技术指标:通过实时监测土壤湿度、温度、ec值等数值,经数据平台处理分析,反馈给生产技术人员,制定相应的轮灌计划,由手机APP或者电脑端远程控制,完成水肥管理。
试点目标:培育一批绣球、杜鹃等高品质观赏花卉苗木,同时达到节约水资源、提高肥料利用率、降低人工成本的目的。

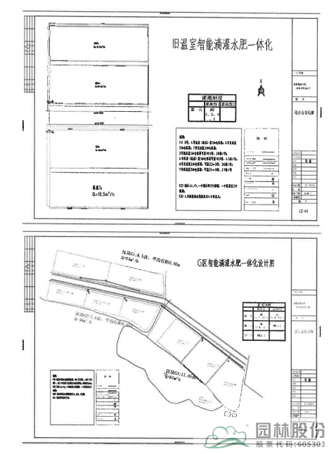
智能滴灌水肥一体化设计图
智能滴灌水肥一体化
智能滴灌水肥一体化系统由滴灌系统和智能控制系统两部分组成。其中,滴灌系统包括水源工程(水源、水泵)、系统首部(控制器、过滤器、施肥系统)、田间首部(电磁阀、检修阀)和灌水器(压力补偿式滴头、滴箭);智能控制系统包括环境传感器、智能采集控制器、系统云平台和电脑/手机终端等。

智能滴灌水肥一体化系统结构示意图

水源

水泵、过滤器和控制器

电磁阀和检修阀

智能采集控制器

压力补偿式滴头

手机APP平台
智能滴灌水肥一体化实景图
智能滴灌水肥一体化技术培训
项目验收完成后,兰再平老师及其团队为公司技术管理人员开展了一期智能滴灌水肥一体化技术培训,详细讲解了这套系统的工作原理、使用方法和注意事项,通过手机APP进行现场演示,并实地对系统的各个环节进行了操作指导。

智能滴灌水肥一体化技术培训

现场指导
